Používame cookies

Súbory cookie a ďalšie technológie sledovania používame na zlepšenie vášho zážitku z prehliadania našich webových stránok, na to, aby sme vám zobrazovali prispôsobený obsah a cielené reklamy, na analýzu návštevnosti našich webových stránok a na pochopenie toho, odkiaľ naši návštevníci prichádzajú. Viac info

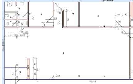
Obchodný - skladový priestor v Karlovej Vsi na prenájom, 130m2

Popis nehnuteľnosti

Zdieľať na Facebooku

AFYreal v zastúpení klienta ponúka na prenájom priestranný obchodno-skladový priestor o výmere 130 m², ktorý sa nachádza v atraktívnej lokalite Jurigovo námestie – Karlova Ves, Bratislava. Ideálne miesto pre prevádzku obchodu, showroomu, služby alebo skladové účely.

Charakteristika priestoru:

výmera: 130 m²

možnosť využitia ako obchod, prevádzka služieb alebo sklad

dobré dispozičné riešenie a flexibilita prispôsobenia

vlastný vstup priamo z ulice

výklady orientované do časti námestia

sociálne zázemie súčasťou priestoru

bezproblémový prístup

Lokalita:

priamo na Jurigovom námestí v centre Karlovej Vsi

výborná dostupnosť MHD (električky, autobusy)

hustá obytná zástavba – veľký potenciál klientely

v okolí rôzne obchody a služby.

Cena: 1200,- Eur + 300,- Eur energie.

Pre viac informácií alebo dohodnutie obhliadky ma kontaktujte na telefónnom čísle +421 910 588 722, alebo e-mailom na gresso@afyreal.sk

Vlastnosti

Status:
aktívne
Vlastníctvo:
neurčené
Úžitková plocha:
130 m2
Stav:
pôvodný stav
Energetický certifikát:
žiadne
Energetická náročnosť budovy:
Klasické materiály
Typ výbavy:
čiastočne vybavený
Sklad:
áno
Pozícia:
Prízemie
Inžinierske siete:
áno
Voda:
áno
Elektrika:
áno
Plyn:
áno
Kanalizácia:
áno
Vykurovanie - lokálne:
áno
Internet:
áno
1 200 €/mesiac dohoda možná
Interné ID: jur75
Ulica: Jurigovo nám.
Mestská časť: Dlhé diely
Obec: Bratislava-Karlova Ves
Okres: Bratislava IV
Kraj: Bratislavský kraj
Druh: Priestory
Typ: Prenájom
Typ objektu: Obchodné priestory

Radi Vám poradíme